Чиланзар | Учтепа-24 | Фархадский Базар | Кафе Москва 2-комнатная квартира 47м²
СРОЧНО | ПРОДАЁТСЯ
ДВУХ КОМНАТНАЯ КВАРТИРА
Район: УЧТЕПА-24
Ориентир: КАФЕ МОСКВА
Характеристики квартиры:
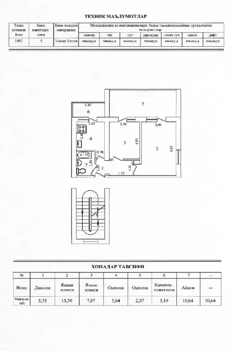
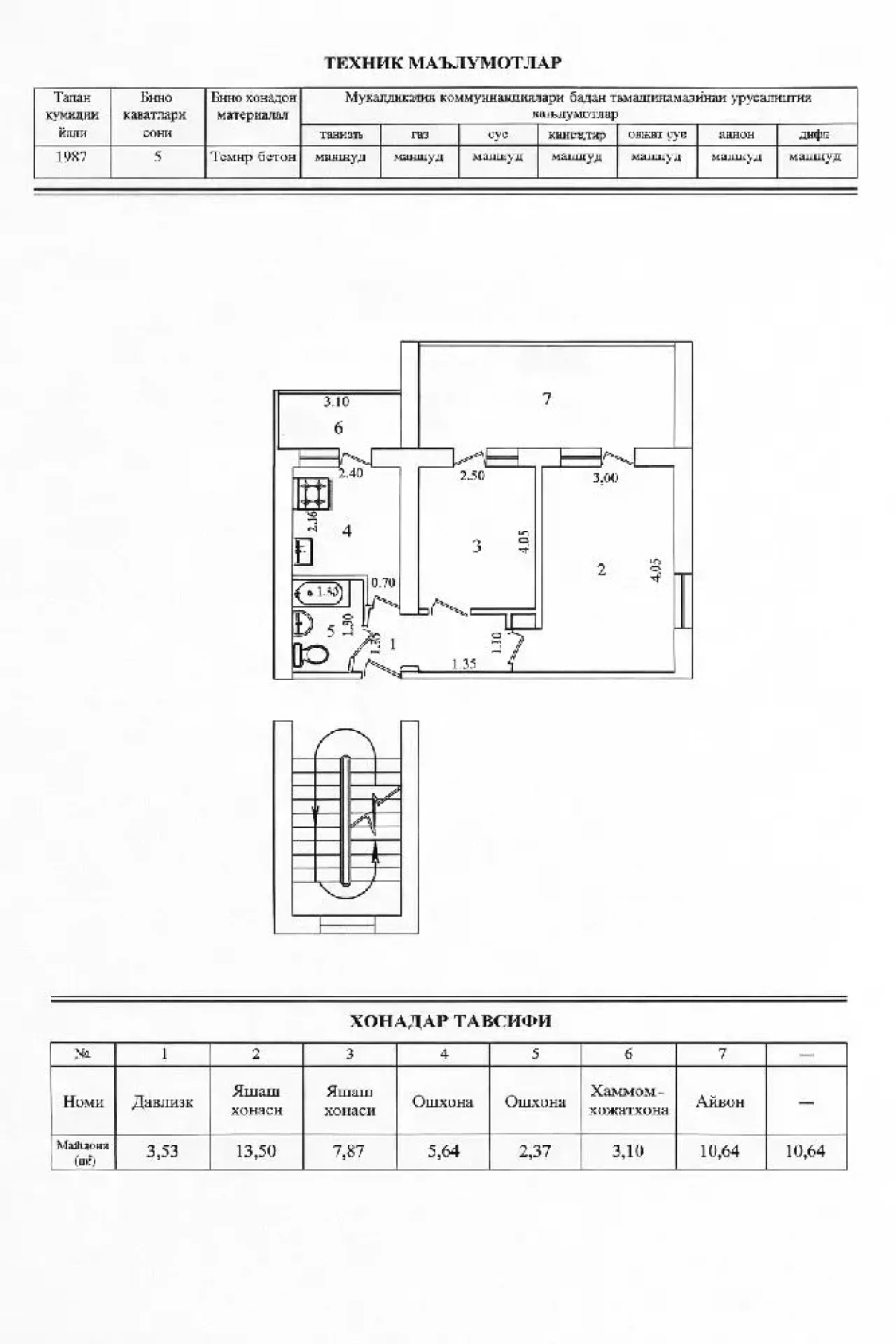
• Количество комнат: 2
• Перепланирована в студию
• Этаж: 3
• Этажность дома: 5
• Два балкон: 1.90х5.60 и 1х3.10
• Общая площадь: 47м²
• Материал дома: кирпичный
• Состояние квартиры: БЕЗ РЕМОНТА
• Квартира торцевая
Цена: 648 000 000 сўм ≈ 54 000
Преимущества:
Удобное расположение:
рядом школа №78, Детский
сад №387, 356, Фархадский базар,
магазины,аптеки, кафешки и т.д.
Отличная транспортная развязка.
Звоните по указанным номерам:
+998(90)805-08-79
--
SHOSHILINCH | SOTILADI
IKKI XONALI KVARTIRA
Hudud: UCHTEPA-24
Mo‘ljal: MOSKVA KAFESI
Kvartira tavsifi:
• Xonalar soni: 2
• Studiyaga qayta rejalashtirilgan
• Qavat: 3
• Uy qavatlari soni: 5
• Ikki balkon: 1.90×5.60 va 1×3.10
• Umumiy maydoni: 47m²
• Uy materiali: g‘isht
• Kvartira holati: TA’MIRSIZ
• Kvartira burchakda joylashgan
Narxi: 648 000 000 so‘m ≈ 54 000
Afzalliklar:
Qulay joylashuv yaqinida
78-maktab, 387 va 356-sonli
bolalar bog‘chalari, Farhod bozori,
do‘konlar, dorixonalar, kafelar va
boshqalar.
A’lo transport qatnovi.
Qo‘ng‘iroq qiling:
+998(90)805-08-79
ДВУХ КОМНАТНАЯ КВАРТИРА
Район: УЧТЕПА-24
Ориентир: КАФЕ МОСКВА
Характеристики квартиры:
• Количество комнат: 2
• Перепланирована в студию
• Этаж: 3
• Этажность дома: 5
• Два балкон: 1.90х5.60 и 1х3.10
• Общая площадь: 47м²
• Материал дома: кирпичный
• Состояние квартиры: БЕЗ РЕМОНТА
• Квартира торцевая
Цена: 648 000 000 сўм ≈ 54 000
Преимущества:
Удобное расположение:
рядом школа №78, Детский
сад №387, 356, Фархадский базар,
магазины,аптеки, кафешки и т.д.
Отличная транспортная развязка.
Звоните по указанным номерам:
+998(90)805-08-79
--
SHOSHILINCH | SOTILADI
IKKI XONALI KVARTIRA
Hudud: UCHTEPA-24
Mo‘ljal: MOSKVA KAFESI
Kvartira tavsifi:
• Xonalar soni: 2
• Studiyaga qayta rejalashtirilgan
• Qavat: 3
• Uy qavatlari soni: 5
• Ikki balkon: 1.90×5.60 va 1×3.10
• Umumiy maydoni: 47m²
• Uy materiali: g‘isht
• Kvartira holati: TA’MIRSIZ
• Kvartira burchakda joylashgan
Narxi: 648 000 000 so‘m ≈ 54 000
Afzalliklar:
Qulay joylashuv yaqinida
78-maktab, 387 va 356-sonli
bolalar bog‘chalari, Farhod bozori,
do‘konlar, dorixonalar, kafelar va
boshqalar.
A’lo transport qatnovi.
Qo‘ng‘iroq qiling:
+998(90)805-08-79
Тип жилья
Вторичка
Тип квартиры
Квартира
Количество комнат
2 комнаты
Общая площадь
47
Этаж
3
Этажность дома
5
Кто разместил
Агент
Тип дома
Кирпичный
Ремонт
Требуется
Санузел
Совмещенный
Балкон
Балкон
Просмотры
3
Просмотры телефона
0
В избранном
0
Размещено
11.02.2026
Актуально до
22.05.2026
№ объявления
20742488